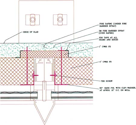
1/2 Plan at Spandrel Jamb (N.T.S.)
email info@superl.netCorporate Headquarters 7301 Apollo Court, Lino Lakes, MN 55014 Phone: (763) 571-7464 Fax: (763) 571-7646